
2D and 3D

Design Your Dream Bathroom with Confidence
At Panmure Bathrooms Ltd, we don’t just install bathrooms — we help you design them. Our showroom is equipped with advanced 2D and 3D design technology, allowing you to see your ideas come to life before any work begins.
With our design facilities, you can:
🖥️ Visualise your bathroom in detail – layouts, finishes, and colour schemes tailored to your space.
🎨 Experiment with different styles – from modern minimal to timeless luxury.
🛠️ Plan with precision – ensuring every fixture and fitting is perfectly placed.
✅ Make confident choices – see exactly how your bathroom will look and feel.
Our design service ensures your project is stress-free, accurate, and tailored around you, giving you complete peace of mind from the very start.

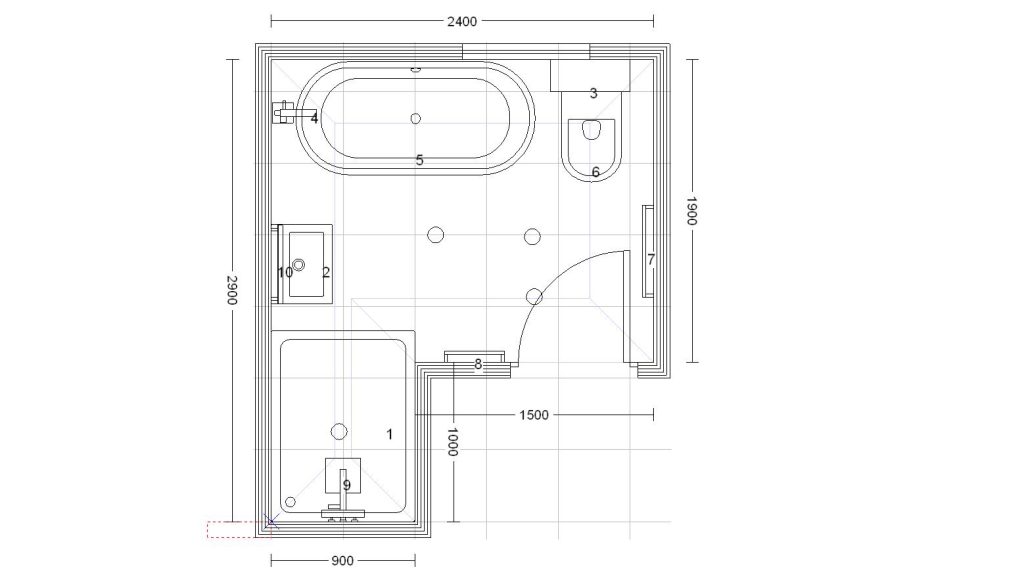
How a 2D Bathroom Design Works
A 2D design is the first step in planning your new bathroom. It provides a flat, scaled drawing of your room layout, showing the exact placement of fixtures, fittings, and furniture.
With a 2D design, you can:
📐 See accurate measurements of your bathroom space.
🚿 Plan the layout of baths, showers, basins, toilets, and storage.
🔄 Test different configurations to find the most practical and efficient design.
✅ Avoid costly mistakes by ensuring everything fits perfectly before installation begins.
Think of it as your bathroom’s blueprint — a precise plan that ensures every detail is correct before moving on to 3D visuals and the installation stage.

How a 3D Bathroom Design Works
A 3D design takes your bathroom planning to the next level by transforming your flat 2D layout into a realistic, life-like visual of your new space.
With a 3D design, you can:
🖥️ See your bathroom in full detail – colours, textures, lighting, and finishes brought to life.
🎨 Experiment with different styles – modern, traditional, or luxury looks at the click of a button.
🛁 Visualise the final result before any work begins, helping you feel confident in your choices.
🔄 Make adjustments instantly – swap tiles, flooring, or fixtures and see the changes in real time.
A 3D design gives you a true-to-life preview of your dream bathroom, making the design process exciting, interactive, and stress-free.

Bringing Your Vision to Life
At Panmure Bathrooms Ltd, we take the stress out of planning by offering both 2D and 3D design services in our showroom. This allows you to visualise your bathroom before installation, ensuring every detail is exactly how you want it.
2D Design – The Blueprint
Our 2D designs provide a flat, scaled layout of your space, showing accurate measurements and the placement of every fixture and fitting. This stage ensures everything fits perfectly, helping you avoid costly mistakes and choose the most practical layout.
3D Design – The Real Vision
Once the layout is finalised, we bring it to life in 3D. Here, you can see your bathroom in full detail — from tiles and flooring to lighting and finishes. You can explore different styles, swap materials instantly, and gain complete confidence in how your new bathroom will look and feel.
✨ With our design facilities, you’ll know exactly what to expect — turning ideas into a bathroom that’s beautifully planned and perfectly installed. ✨
Experience Your Dream Bathroom Before It’s Built With Our 2d and 3d Design Services!
2024 @ Panmure Bathrooms LTD

